Ga terug

Dierenartsenpraktijk Reeuwijk
PROJECT
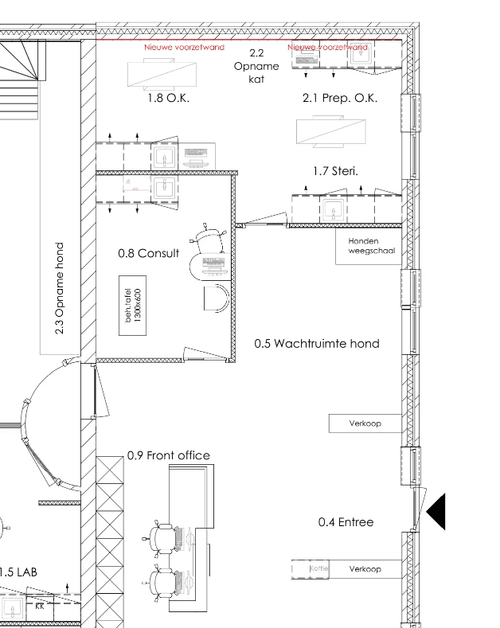
Transformatie bestaand bedrijfspand naar een moderne dierenkliniek met meerdere behandelkamers, klinische ruimtes en een publieksfunctie.
ROL LOOF
Begeleiding van de opdrachtgever bij het vinden en huren van de locatie, en verzorgde de afstemming met de verhuurder. Na het vastleggen van de huur organiseerde LOOF het traject voor vergunningen en participatie met omwonenden en begeleidde de transformatie van het pand naar een dierenkliniek, van ontwerp tot uitvoering.
KENMERKEN
Functie: Dierenkliniek
Type: transformatie
Scope: acquisitie locatie, vergunningstraject, ontwerp en renovatie
Status: opgeleverd maart 2026
Transformatie bestaand bedrijfspand naar een moderne dierenkliniek met meerdere behandelkamers, klinische ruimtes en een publieksfunctie.
ROL LOOF
Begeleiding van de opdrachtgever bij het vinden en huren van de locatie, en verzorgde de afstemming met de verhuurder. Na het vastleggen van de huur organiseerde LOOF het traject voor vergunningen en participatie met omwonenden en begeleidde de transformatie van het pand naar een dierenkliniek, van ontwerp tot uitvoering.
KENMERKEN
Functie: Dierenkliniek
Type: transformatie
Scope: acquisitie locatie, vergunningstraject, ontwerp en renovatie
Status: opgeleverd maart 2026






